相关标签:
充砂型电气设备的防爆原理是将能点燃爆炸性气体的部件固定在适当位置上,且完全埋入填充材料中,以防止点燃外部爆炸性气体环境。这种防爆型式不能阻止爆炸性气体进入设备和Ex元件而被点燃,而是依靠填充材料中空隙小,且火焰通过填充材料中的通路时被熄灭,从而防止外部爆炸。因此标准GB/T 3836.7—2017对充砂型“q”填充材料内的距离做了如下规定:
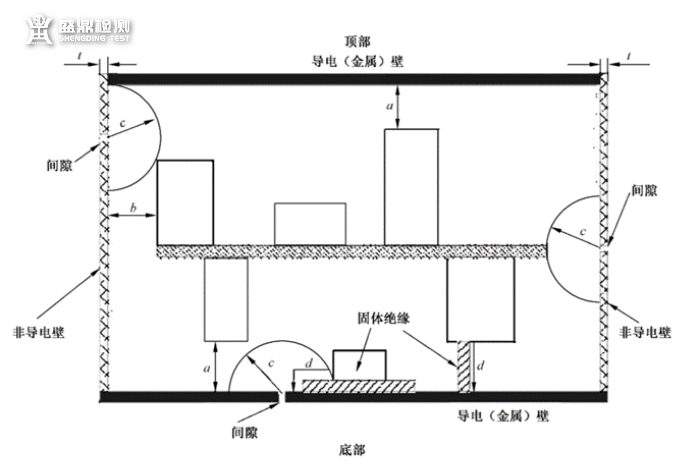
充砂型“q”保护的设备内导电部件与箱体内表面之间通过填充材料的最短距离需符合GB/T 3836.7—2017中表1和图1的规定:

对表1的内容需要做以下几点说明:
(1) 工作电压可高于表中电压乘以1.1的系数,也就是说工作电压如果是表中电压的1.1倍以内,那么要求值可以按照表中电压去规定,否则就得按照更高电压等级去要求;
(2) 为了确保填充材料内有足够的路径长度,能够熄灭从箱体内部向外部传播的火焰,仅在箱体内没有相邻的间隙,不会使火焰传出箱体时,才允许采用表中的缩小距离,结合GB/T 3836.7—2017图1加以说明,图1中:

a—距导电壁的距离,符合表1规定,允许采用缩小距离;b—距厚度为t的非导电壁的距离,b≥表1规定的距离-t;c—距间隙的距离,最小半径符合表1规定的最小距离,不允许采用缩小距离。(3) 在确定工作电压时应考虑4.8规定的故障条件。
注:充砂型“q”保护的设备适用的额定电压应不超过1140V,表1考虑了设备或Ex元件内部可能产生高于1140V的工作电压。
参考内容:GB/T 3836.7—2017 《爆炸性环境 第7部分:由充砂型“q”保护的设备》
